Fotos Historischer Stadtpalast in Apulien

Francavilla Fontana Stadtpalais
zu verkaufen

Anfrage senden

Historischer Stadtpalast in Apulien

Francavilla Fontana, Via Benanduci 6, Apulien, Italien

EUR 1.500.000
  1. Preis verhandelbar
  2. Provision 5%
  1. Stadtpalais
  2. Baujahr 1600
  3. Geschütztes Denkmal
  4. 1.600 m² Gesamtfläche
  5. 1.300 m² Wohnfläche
  6. 1.300 m² Nutzfläche
  7. 425 m² Grundstück

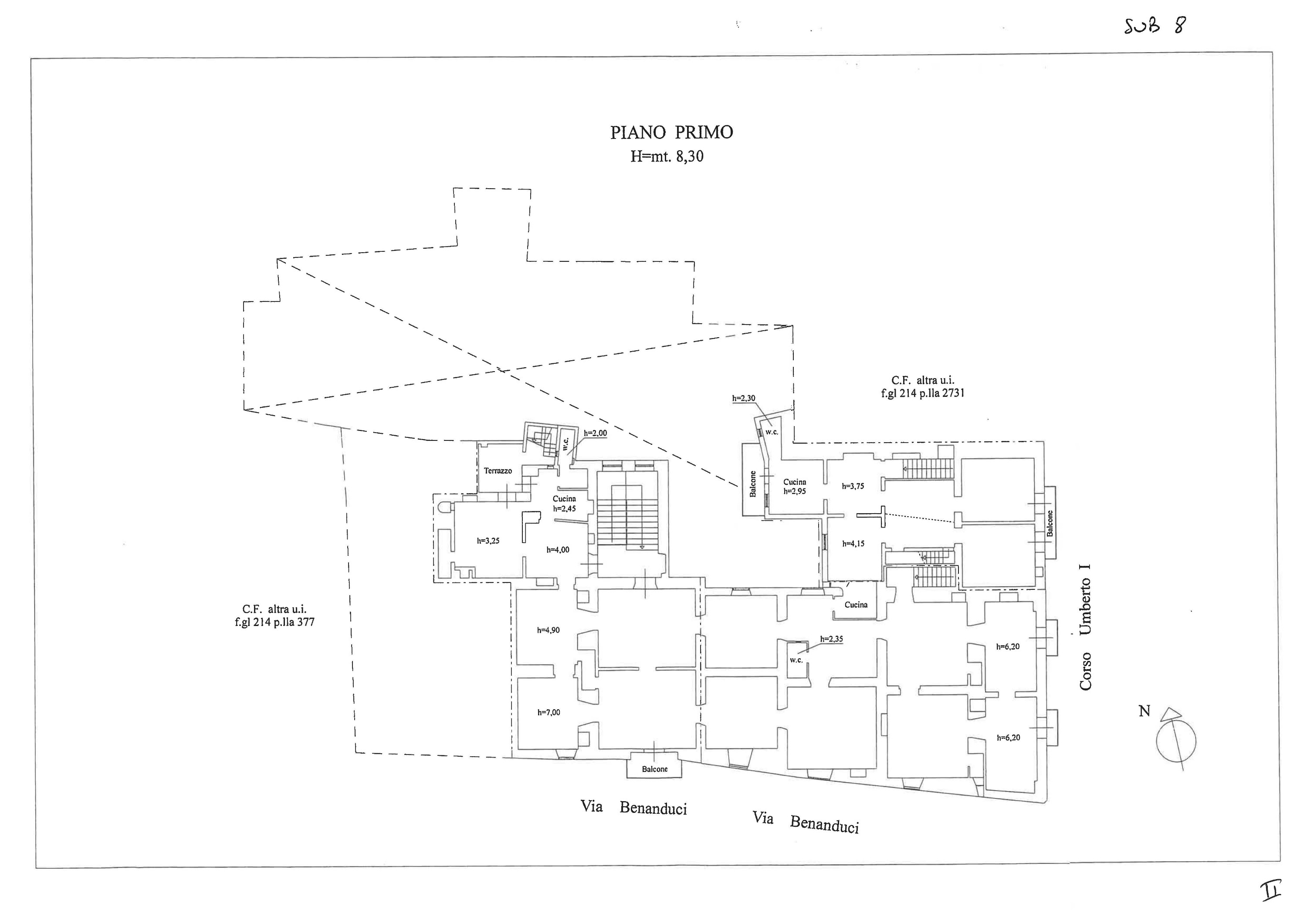
Im historischen Zentrum von Francavilla Fontana, prominent an der Ecke Via Benanduci/Corso Umberto I und nur wenige Schritte von Castello Imperiali, der Hauptkirche und der Piazza Umberto I entfernt, steht Palazzo Benanduci zum Verkauf. Das Gebäude ist durch ein ministerielles Dekret als kulturhistorisch und künstlerisch bedeutsam geschützt und bietet damit eine gute Basis für eine hochwertige Sanierung. 

Das genaue Baujahr ist nicht überliefert, sicher ist jedoch: Der Palast befindet sich am Standort der ehemaligen Porta San Nicola, bereits auf den Karten von Centonze (1643) verzeichnet. Über Jahrhunderte wurde das Haus an die städtebauliche Entwicklung angepasst, sichtbar etwa an verschlossenen Öffnungen, veränderten Erdgeschosszugängen oder später ergänzten Balkonen. 

Der Palast erstreckt sich über zwei oberirdische Ebenen. Das Erdgeschoss diente ursprünglich der Lagerung, während das Piano Nobile die repräsentative Beletage bildet. Der Haupteingang über ein charakteristisches Portal (mit Balkon darüber) führt in eine großzügige Eingangshalle mit Sterngewölbe und traditionellem Chianche-Steinboden. Eine eindrucksvolle Steintreppe führt hinauf in das Piano Nobile mit großen, gewölbten Räumen, beachtlichen Raumhöhen und historischen Holztüren aus dem 17. Jahrhundert.

Die Beletage umfasst ca. 705 m², das Erdgeschoss ca. 714 m², teils heute mit gewerblicher Nutzung. Ein echtes Alleinstellungsmerkmal ist der private, innenliegende Garten von ca. 425 m², eine Rarität in der Altstadt. Ergänzt wird das Objekt durch technische Volumina im oberen Bereich (ca. 200 m²) sowie Terrassen und Balkone von insgesamt ca. 500 m².

Eine umfassende Sanierung ist erforderlich (ein Teil wurde bis vor wenigen Jahren als Büro- und Praxisflächen genutzt). Aufgrund von Lage, Größe und Charakter eignet sich das Objekt für ein Boutique-Hotel, eine repräsentative Privatresidenz oder ein hochwertiges gemischtes Konzept.

Förderhinweis Apulien: PIA & Mini PIA

In Apulien können je nach Ausschreibung und Förderfähigkeit Programme wie PIA und Mini PIA Investitionen (besonders im Tourismus- und Hospitality-Bereich) durch Zuschüsse oder erleichterte Finanzierung unterstützen. Wir begleiten bei Vorprüfung, Unterlagen und Projektaufsetzung.

Charakter & Ausstattungsdetails

Baulicher Zustand
Renovierungsprojekt Sanierungsprojekt
Lage
Altstadt
Aussicht
Stadtblick
Architektur
Regionaler Architekturstil
Architekturdetails
Großes Treppenhaus Kamin Hohe Decken Stuckdecken Gewölbedecken
Grundstückseigenschaften
Vollständige Einfriedung Garten
Derzeitige Nutzung
Wohnimmobilie Gewerbeimmobilie
Bauweise und Fassade
Freistehendes Gebäude Steinfassade
Dach
Dachterrasse
Fenster
Holz-Fensterrahmen
Fußboden
Historische Bodenfliesen Steinboden
Versorgungseinrichtungen
Vollständig erschlossen
Rechtliche Informationen

Agentur

Oikos Immobiliare SRL

Via Latiano 7

72024 Oria

Italien
Geschäftsführung
Diego Moretto
Unternehmensinformationen
Aufsichtsbehörde
FIAIP - Brindisi IQI country manager
Kontakt
Mobil: +393282252086
Festnetz: +39 083 184 5686
Oikos Immobiliare SRL abonnieren

Erhalten Sie neue Immobilienangebote von dieser Agentur per E-Mail. Der Suchauftrag kann jederzeit wieder deaktiviert werden.

  • REALPORTICO-ID
    2714528
  • Letzte Änderung
    vor 6 Tagen
  • Ansichten
    499
  • Erreichte Personen
    452

Dieses Immobilienangebot erreicht eine breite Zielgruppe in diesen Ländern

Anzeigenaufrufe der letzten 30 Tage

Oikos Immobiliare SRL

Diese Angebote könnten Sie interessieren

Top saniertes Bed and Breakast im historischen Stadthaus in Ostuni
900.000 EUR
Altes Stadthaus in Oria
155.000 EUR
Masseria - Befestigtes Bauernhaus mit Kapelle bei Oria
177.000 EUR

Schlösser · Villen · Herrenhäuser

Weitere Immobilienangebote

Stadtpalais Apulien

Erstellen Sie einen E-Mail-Suchauftrag und lassen Sie sich über neue Objekte informieren oder melden Sie sich für Portico Secrets an, um Zugriff auf weitere, nicht öffentlich gelistete Immobilien zu erhalten.

Inspirierende Entdeckungen